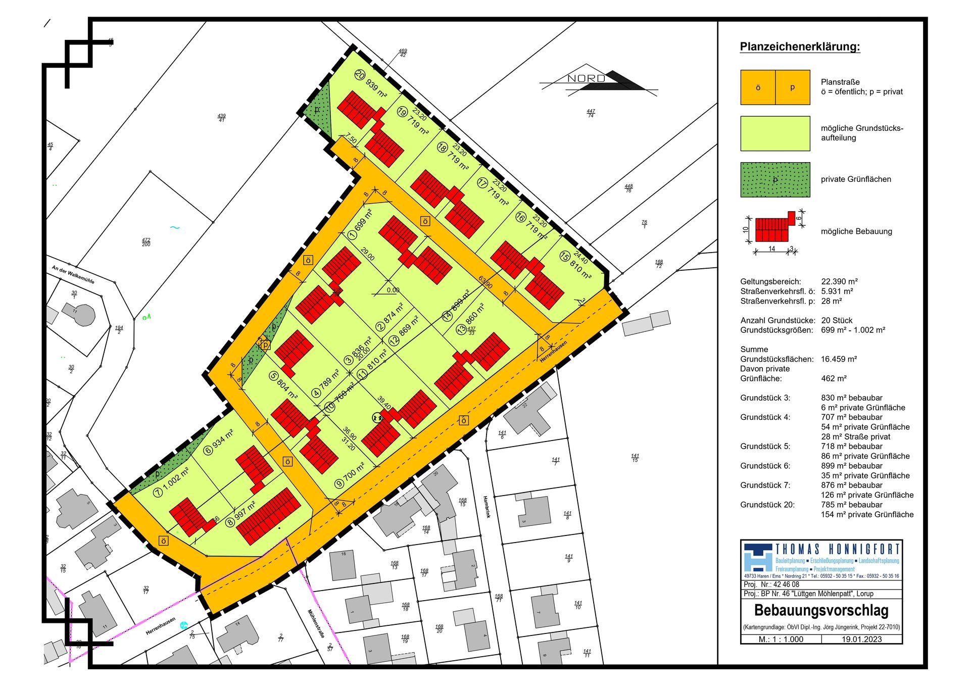
Neubaugebiet "Lüttgen Möhlenpatt"
Neubaugebiet "Lüttgen Möhlenpatt"
| Kategorie | Neubaugebiet |
| Art | Information |
| Größe | 2,2 Ha |
| Ort | Lorup |
| Baugrundstücke | 20 |
Informationen
An der Straße „Herrenhausen“ entsteht in Lorup ein neues Baugebiet für junge Familien auf einer Fläche von 2,2 ha. Die Projektdurchführung vom Grunderwerb über Erschließung bis zum Verkauf erfolgt durch die Lüttgen Möhlenpatt GbR. Die Erschließung erfolgt sofort in Endausbauqualität.

Objektbeschreibung
Die Bebauung im allgemeinen Wohngebiet ist vorgesehen mit:
· 1 Mehrparteienhaus zur Vermietung
· 3 Doppelhäuser zur Vermietung
· 16 Grundstücke zur Eigennutzung
Durch die öffentlichen Versorger wurde Strom, Wasser, Schmutzwasser incl. Hausanschlüsse und eine Glasfaserleitung verlegt. Ein Gasanschluss wird durch die EWE nicht mehr verlegt. Ein geplantes Versickerungsbecken fängt das Niederschlagswasser der öffentlichen Straßenfläche auf.
Planung
Die Planungen sehen vor, dass ab ca. Januar 2025 mit der Bebauung begonnen werden kann. Interessenten können sich untenstehend weiterhin vormerken lassen. Die Grundstücksvergabe orientiert sich an den Kriterien der Gemeinde Lorup.